Description
Löwen Lauperswil - Wohnungen, Reihenhäuser und ein Einfamilienhaus so einzigartig wie Sie!
Baustart erfolgt - Einzug Frühling 2026!
Endlich,..Der historische Löwen in Lauperswil wird aus seinem Dornröschenschlaf geholt. Das grosse Volumen, das historische Fassaden- und Mauerwerk werden wieder einem Zweck zugeführt. Nach Jahren des Leerstands wird der einst stolze Gasthof Löwen zum eindrucksvollen Wohnhof mit 2 Reihenhäusern, 4 Eigentumswohnungen sowie einem Studio. Jede Einheit ein Unikat mit dem einzigartigen Mix aus Tradition und Moderne.
Sie lieben das Emmental? Sie wohnen gerne behaglich hinter Mauern, die viele Geschichten erzählen? Exklusiv im Sinne von 'abgehoben' ist nicht Ihr Ding. Aber exklusiv im Sinne von 'einzigartig' das wünschen Sie sich? Sie freuen sich jetzt schon darauf, mit Ihrem persönlichen Stil einer dieser aussergewöhnlichen Wohnungen/Reihenhäuser auszustatten? Sie können zwischen folgenden Einheiten auswählen:
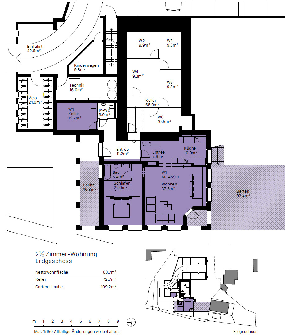
- W1; für Individualisten allenfalls mit einem Hang zum Kochen und Gäste verwöhnen? Einst die Gaststube und Terrasse des Löwen. Jetzt Ihr Löwenreich mit 2.5 Zimmer, Laube und eben einem grossen Garten/Terrasse von 92m2!
- Raumbeschrieb: Garderobe/Entrée mit 7.9m2, Küche 10.9m2, Bad 5.4m2, Schlafzimmer 22m2, Wohnen/Essen 37.5m2, Laube 16.8m2, Garten/Terrasse 92.4m2, Keller 12.7m2
- W2; die Grossflächige mit Optionen! RESERVIERT! Wohnen und Arbeiten oder doch lieber nur eine grosse Wohn- und Genusslandschaft mit historischem Touch? Sie entscheiden! 130.m2 Nettowohnfläche auf einem Geschoss warten auf auf Sie!
- Raumbeschrieb: Garderobe/Entrée 6.5m2, Korridor 13.7m2, Küche 12.3m2, Essen 20.8m2, Wohnen 17.8m2, Zimmer 13.1m2, Zimmer 15.4m2, Zimmer 16m2, Bad mit Badewanne und Dusche 11m2, Reduit/Waschen 4m2, Sitzplatz 22.1m2, Keller 9.9m2
- W3; für Liebhaber der Maisonett! RESERVIERT! Im 1. OG Wohnen/Essen/Kochen mit Loftfeeling - Raumhöhe 3 Meter - und dazu eine grosse Terrasse mit 51m2! Im 2. OG dann Rückzugsmöglichkeiten: Schlafen, Büro, Wellness im schönen Bad oder schnell in der Ankleide umstylen und ab auf die Terrasse! Sie benötigen viel Stauraum? Diese Wohnung bietet Ihnen einen riesigen Estrich und einen Keller.
- Raumbeschrieb 1. OG: Garderobe/Entrée 5.3m2, Küche 10.5m2, Wohnen/Essen 26.8m2, Gäste-WC 2.5m2, Reduit/Waschen 3.5m2, Sitzplatz 51.3m2 / 2.OG: Schlafzimmer mit Ankleide 28.3m2, Zimmer 10m2, Zimmer 10.3m2, Bad mit Badewanne und Dusche 7.5m2, Korridor 9.8m2, Keller 9.3m2, Estrich 41.3m2
- W4; Wenn die Eigentumswohnung zum Haus wird! RESERVIERT! Geniale und beeindruckende Architektur im Neubaubereich, die keine Wünsche offen lässt. Der private Garten, der Luftraum, die Galerie und bis zu 6.5 Zimmer sind überzeugende Argumente für dieses Löwenhaus auf 166m2 Nettowohnfläche!
- Raumbeschrieb OG: Garderobe/Entrée 7.4m2, Wohnen/Essen/Küche 40.9m2, Gäste-WC 2.9m2, Reduit von Aussen und Innen zugänglich mit 11.5m2, privater Garten mit 113.9m2 / 2.OG: Bad mit Dusche und Badewanne 12.1m2, Zimmer 22.6m2, Zimmer 14.8m2, Korridor und Luftraum 5.5m2 / DG: Zimmer 20.2m2, Zimmer 10m2, Galerie 12.9m2, Korridor 5.6m2, Estrich 27.5m2, Keller 9.3m2
- W5; Von allem noch etwas mehr! So lässt sich dieses Reihenhaus im Neubaubereich beschreiben. Garten 201m2, Wohnfläche 170m2,bis 7.5 Zimmer,... und natürlich auch mit Luftraum und Galerie!
- Raumbeschrieb OG: Garderobe/Entrée 7.6m2, Wohnen/Essen/Küche 44m2, Gäste-WC 3.9m2, Reduit von Aussen und Innen zugänglich 11.5m2, privater Garten 201.5m2 / 2.OG Zimmer 14.4m2, Zimmer 14.8m2, Zimmer 12m2, Bad mit Dusche 5.2m2, Korridor und Luftraum 8.8m2 / DG: Zimmer 12.1m2, Zimmer 9.8m2, Bad mit Badewanne 5.2m2, Galerie 12.9m2, Korridor 8.2m2, Estrich 27.6m2, Keller 9.3m2
- W6; Hier sind Sie der Löwe im Dach! Herrlich diese Wohnung mit 3.5 Zimmer auf 135m2 Nettowohnfläche!
- Raumbeschrieb 2.OG: Garderobe/Entrée 12m2, Küche 9m2, Wohnen 26m2, Essen 20m2, Zimmer mit Ankleide 23m2, Bad mit Badewanne und Dusche 11m2, Balkon 16.6m2 / DG: Schlafgalerie 34.8m2, Estrich 4m2, Estrich 3.3m2, Keller 10.5m2
- W7; Disponibel; wir sind offen für Ihre Ideen! RESERVIERT! Büro, Therapieraum, Bibliothek, Kino, Hobbyraum,...
Der historische Löwen bildet zusammen mit dem neuen Einfamilienhaus (verkauft) ein schönes Ensemble und verleiht dem Zentrum von Lauperswil einen neuen Glanz.
Übrigens, die Dorfstrasse von Lauperswil ist eine 30er Zone! Ruhe, Achtsamkeit - Wohlfühlen im Emmental!
Haben wir Ihr Interesse geweckt? Sie möchten gerne weitere Informationen? Wir freuen uns, Ihnen das einzigartige Projekt eingehend zu erläutern und vereinbaren gerne mit Ihnen einen Termin.
Promotion/Verkauf: Wymobilien, Marcel Wyss, Langnau und Kirchberg
Bauherrin: Rothenbühler AG, Zollbrück
Situation
Insider wissen es, innerhalb 5 Minuten erreichen Sie:
- Bahnhof Zollbrück / Bushaltestelle Zollbrück
- Bäckerei, Lebensmittelladen, Drogerie, Jakob Markt, gute Restaurants,...
Municipality
Die Gemeinde Lauperswil erstreckt sich beidseits der Emme, quer über das Tal, von der Blasenfluh bis zum Gränichenwald, dem Quellengebiet des Unteren Frittenbachs. Sie umfasst neben einer Grosszahl von Einzelhöfen und kleinen Hofgruppen die Dörfer Lauperswil, Emmenmatt und einen Teil der Ortschaft Zollbrück, Obermatt und die Kalchmatt, sowie die Weiler Längenbach, Wittenbach, Ebnit und Moosegg.
Die Ortschaft Zollbrück ist geteilt, der nördliche Teil gehört zur Gemeinde Rüderswil.
Postalisch wird Lauperswil durch die Poststellen Langnau sowie Zollbrück erschlossen, wobei die Poststelle Zollbrück, integriert im TopShop der Landi, auf dem Gemeindegebiet Rüderswil liegt.
Schule:
In Lauperswil können Sie von einem fortschrittlichen und bestens organisierten Schulsystem profitieren: ZWEI GEMEINDEN - SECHS STANDORTE - EINE SCHULE! Rund 500 Schüler und Schülerinnen vom Kindergarten bis zur 9. Klasse, mehr als 80 Lehrpersonen, Schulleitungen, Klassenhilfen, Zivildienstleistende, Hauswartspersonal, Schulkommission, Sekretariat und Geschäftsstelle bilden den Gemeindeverband Schule Zollbrück.
Mitten im Dorf Lauperswil steht ein Schulhaus. Es bietet Platz für 4 Schulklassen und zwei Kindergartenklassen, ebenfalls ist die Tagesschule Lauperswil in diesem Gebäude untergebracht. Ab Sommer 2025 wird zudem ein neues Oberstufenzentrum in Betrieb genommen. Der Unterricht wird in Inputräumen und in Lernlandschaften stattfinden. Der Bau basiert auf dem Konzept des selbstorganisierten Lernens und gilt im Kanton Bern als Leuchtturmprojekt und ist in seiner Form einzigartig.
Public transport
Die Bahnstationen von Neumühle (RM) und Emmenmatt (SBB) bilden die Nahtstellen für den öffentlichen Verkehr. Die Distanz nach Bern beträgt 30 km, zum Wirtschaftszentrum des Emmentals, Langnau, nur 5 km.
Dank dieser guten ÖV-Anbindung benötigen Sie ab den jeweiligen Bahnhöfen 8 Minuten nach Langnau, 38 Minuten nach Bern, 40 Minuten nach Thun!
Conveniences
Neighbourhood
- Village
- Green
- Shopping street
- Restaurant(s)
- Railway station
- Bus stop
- Child-friendly
- Playground
- Primary school
- Secondary school
- Hiking trails
- Bike trail
Outside conveniences
- Balcony/ies
- Terrace/s
- Garden
- Greenery
- Storeroom
- Covered parking space(s)
Inside conveniences
- Without elevator
- Garage
- Open kitchen
- Cellar
- Garret
- Triple glazing
- With character
Equipment
- Fitted kitchen
- Induction cooker
- Fridge
- Dishwasher
- Washing machine
- Dryer
- Private laundry
Floor
- Tiles
- Parquet floor
Condition
- New
Style
- Character house









































